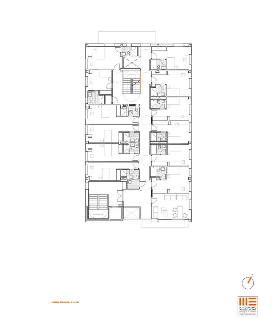
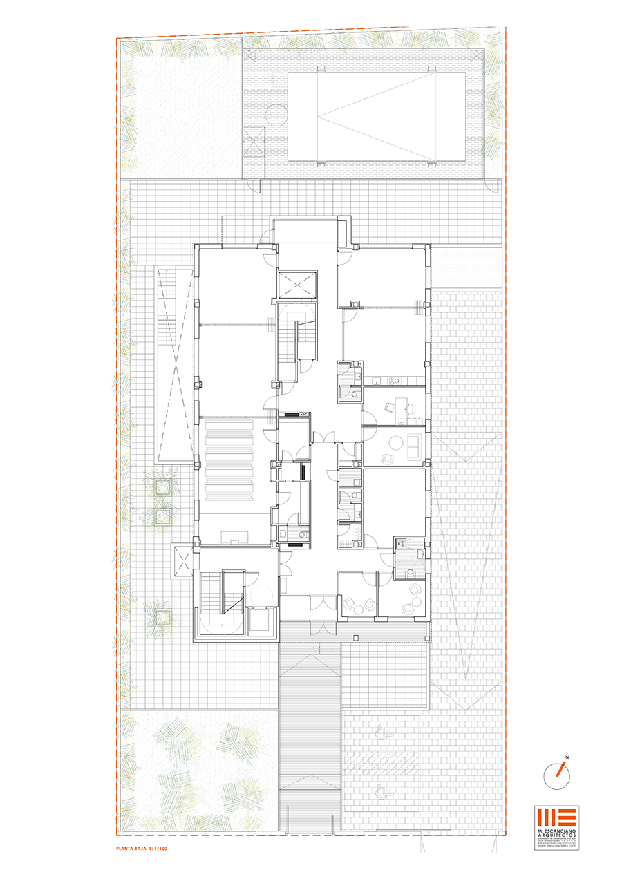
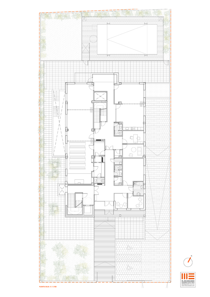
Residencia de Estudiantes

LUGAR: Alcalá de Henares

FECHA DE CONSTRUCCIÓN: 2024

CONTRATISTA: RUESMA

SUPERFICIE: 1.900 m2

PROMOTOR: Fundación Promoción Social de la Cultura

APAREJADOR: Enrique Maroto